
Nieuwbouwwoning in Papendrecht
In Papendrecht hebben wij iets bijzonders gebouwd. Deze nieuwbouwwoning is van begin tot eind ontworpen en gebouwd op basis van de persoonlijke dromen en wensen van onze opdrachtgever.
Elke steen, elke ruimte en elk detail vertelt het verhaal van een thuis dat écht past bij zijn bewoners. Van het eerste gesprek tot de laatste afwerking hebben wij samen gezocht naar slimme, duurzame oplossingen en een stijl die nergens anders te vinden is.
Het resultaat? Een thuis waar comfort, energiezuinigheid en maatwerk samenkomen – helemaal in lijn met de wensen onze opdrachtgevers én met oog voor de toekomst.
Nieuwbouw dat staat als een huis


Een overzicht van deze nieuwbouwwoning
Hieronder vindt je heldere informatie over de indeling, afmetingen en constructiedetails. Wil je meer weten of de woning zelf ervaren? Neem gerust contact met ons op voor een afspraak of aanvullende vragen. We helpen je graag verder!
Wij hebben deze gegevens met zorg samengesteld maar ondanks dat kunnen hier geen rechten aan ontleent worden.
En zo zit het in elkaar
Technische omschrijving
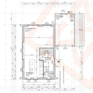
Begane grond
Entree / hal: ca. 2,10 m × 2,20 m = ongeveer 4,6 m²
Ruime hal met toegang tot de trap, meterkast en het toilet.Woonkamer / leefruimte: ca. 7,50 m × 5,00 m = ongeveer 37,5 m²
Lichte woonkamer met grote raampartijen voor een ruimtelijk gevoel en veel daglicht.Keuken: ca. 3,50 m × 3,00 m = ongeveer 10,5 m²
Open keuken aan de voorzijde, ideaal voor een kookeiland of ruime opstelling.Toilet: ca. 1,20 m × 1,00 m = ongeveer 1,2 m²
Compact en praktisch gesitueerd bij de entree.Garage (aangebouwd): ca. 6,00 m × 3,00 m = ongeveer 18 m²
Inpandig bereikbaar en geschikt voor auto, fietsen of opslag.
Eerste verdieping
Slaapkamer 1 (achterzijde): ca. 4,80 m × 3,30 m = ongeveer 15,8 m²
Royale hoofdslaapkamer met veel lichtinval.Slaapkamer 2 (voorzijde): ca. 3,80 m × 3,00 m = ongeveer 11,4 m²
Ideaal als kinder- of werkkamer.Badkamer: ca. 2,60 m × 2,30 m = ongeveer 6 m²
Voorzien van ruimte voor een ligbad, inloopdouche en dubbele wastafel.Overloop: ca. 2,50 m × 2,00 m = ongeveer 5 m²
Toegang tot alle vertrekken en de trap naar de zolder.Berging / wasruimte: ca. 2,00 m × 1,50 m = ongeveer 3 m²
Praktische ruimte voor wasmachine en droger.
Zolder
Open zolderruimte: ca. 6,00 m × 3,50 m = ongeveer 21 m²
Flexibele ruimte voor een extra slaapkamer, werkkamer of speelzolder.
Dakramen zorgen voor natuurlijk licht en ventilatie.
Constructiedetails
Buitenmuren: Traditioneel metselwerk met hoogwaardige isolatie voor energiezuinig wonen.
Dak: Schilddak met donkere keramische dakpannen en strakke afwerking, zichtbaar op de gevelaanzichten en doorsneden.
Vloeren: Begane grond uitgevoerd in een geïsoleerde betonvloer; verdiepingsvloeren in beton voor geluidsdemping en stevigheid.
Kozijnen: Kunststof kozijnen met HR++ glas, onderhoudsarm en zeer isolerend.
Gevels: Symmetrische indeling met strakke lijnen en eigentijdse detaillering.
Trap: Gesloten houten trap van begane grond tot zolder, centraal in de woning geplaatst.
Deze strakke, moderne gezinswoning in Papendrecht combineert comfort en functionaliteit. De royale woonkamer met open keuken vormt het hart van het huis, ideaal voor gezellig samenzijn en het ontvangen van gasten. Op de verdieping bevinden zich twee ruime slaapkamers, een complete badkamer en praktische bergruimte. De zolder biedt volop mogelijkheden voor extra slaapkamers, een thuiskantoor of hobbyruimte.
De woning heeft een eigentijdse uitstraling dankzij het rode metselwerk, het donkere schilddak en de strakke kozijnen. De inpandige garage maakt de woning extra praktisch en multifunctioneel. Perfect voor gezinnen die op zoek zijn naar een moderne woning met veel ruimte en een duurzame bouwstijl.





Niet alleen nieuwbouw
Van Weenen Bouwbedrijf staat niet alleen voor hoogwaardige nieuwbouw, zoals bij de door ons gebouwde woning De Schildwoning, maar is ook dé vertrouwde partner voor diverse andere bouwprojecten. Ontdek onze vakkennis in renovatie – van het herstellen en moderniseren van casco’s tot het verfijnen van uw interieur voor optimaal comfort en uitstraling. Speciale aandacht schenken we aan monumentale renovatie, waarbij de historische waarde van uw pand zorgvuldig wordt behouden. Wilt u uw woning verleiden met een stralende uitstraling? Onze expertise in gevelrenovatie zorgt voor een duurzame verfraaiing én bescherming. En voor wie droomt van maatwerk: onze afdeling interieurbouw realiseert overtuigende, persoonlijke oplossingen die naadloos aansluiten op uw wensen.
Meer informatie?
Samen de eerste paal slaan van je nieuwbouwwoning?
Wilt u meer weten over deze woning of andere mogelijkheden? Neem vandaag nog contact met ons op voor een vrijblijvend gesprek. Onze experts staan voor u klaar om uw vragen te beantwoorden en u te begeleiden bij de volgende stap. Samen maken we uw woonwensen werkelijkheid!

