
Nieuwbouwwoning in Dordrecht
In Dordrecht hebben wij iets bijzonders gebouwd. Deze nieuwbouwwoning is van begin tot eind ontworpen en gebouwd op basis van de persoonlijke dromen en wensen van onze opdrachtgever.
Elke steen, elke ruimte en elk detail vertelt het verhaal van een thuis dat écht past bij zijn bewoners. Van het eerste gesprek tot de laatste afwerking hebben wij samen gezocht naar slimme, duurzame oplossingen en een stijl die nergens anders te vinden is.
Het resultaat? Een thuis waar comfort, energiezuinigheid en maatwerk samenkomen – helemaal in lijn met de wensen onze opdrachtgevers én met oog voor de toekomst.
Nieuwbouw dat staat als een huis
Contact opnemen

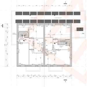
Een overzicht van deze nieuwbouwwoning
Hieronder vindt je heldere informatie over de indeling, afmetingen en constructiedetails. Wil je meer weten of de woning zelf ervaren? Neem gerust contact met ons op voor een afspraak of aanvullende vragen. We helpen je graag verder!
Wij hebben deze gegevens met zorg samengesteld maar ondanks dat kunnen hier geen rechten aan ontleent worden.
En zo zit het in elkaar
Technische omschrijving
Begane grond
Entree / hal: ca. 2,40 m × 2,10 m = 5,0 m²
Ruime entree met trapopgang naar de eerste verdieping en directe toegang tot het toilet en de woonkamer.
Woonkamer / leefruimte: ca. 8,20 m × 5,90 m = 48,4 m²
Zeer ruime woonkamer met veel lichtinval door de grote raampartijen en een erker aan de voorzijde. Open verbinding met de keuken en voldoende ruimte voor een grote zithoek en eettafel.
Keuken: ca. 3,70 m × 3,30 m = 12,2 m²
Open keuken, ideaal voor een kookeiland of een ruime eethoek. Directe toegang tot de tuin via openslaande deuren.
Berging / bijkeuken: ca. 3,00 m × 2,80 m = 8,4 m²
Praktische berging, bereikbaar vanuit de keuken en met toegang tot de tuin. Ideaal voor extra opslag of een wasruimte.
Eerste verdieping
Slaapkamer 1 (master): ca. 5,00 m × 3,50 m = 17,5 m²
Royale slaapkamer met veel lichtinval en uitzicht op de achtertuin.
Slaapkamer 2: ca. 4,00 m × 3,00 m = 12,0 m²
Ideaal in te richten als kinderkamer of kantoorruimte.
Slaapkamer 3: ca. 3,20 m × 2,80 m = 9,0 m²
Compacte maar functionele kamer, perfect als hobbykamer of logeerkamer.
Badkamer: ca. 3,00 m × 2,80 m = 8,4 m²
Moderne badkamer met ruimte voor een inloopdouche, ligbad en dubbele wastafel.
Overloop / hal: ca. 2,50 m × 2,00 m = 5,0 m²
Centrale overloop met toegang tot alle slaapkamers en de zoldertrap.
Zolder
Zolderruimte: ca. 7,00 m × 5,00 m = 35,0 m²
Grote open ruimte met dakkapel, ideaal voor een extra slaapkamer, werkkamer of speelruimte. Veel bergruimte onder de schuine kanten van het dak.
Constructiedetails
Buitenmuren: Donkere baksteen met lichte accenten, volledig geïsoleerd volgens de BENG-normen.
Dak: Zadeldak met keramische dakpannen en een royale dakkapel voor extra ruimte op zolder.
Vloeren: Geïsoleerde betonvloeren op de begane grond en verdiepingen in kanaalplaatbeton.
Kozijnen: Onderhoudsarme kunststof kozijnen met HR++ glas voor uitstekende isolatie en een moderne uitstraling.
Installaties: Duurzaam uitgevoerd met warmtepomp, vloerverwarming op alle verdiepingen en balansventilatie voor een gezond binnenklimaat.
Deze stijlvolle woning in Dordrecht combineert een klassieke architectuur met moderne duurzaamheid. Dankzij de donkere gevelsteen en lichte details straalt de woning klasse en tijdloosheid uit. Binnen vind je volop ruimte met een royale woonkamer, open keuken, drie slaapkamers en een grote zolder.
De woning is toekomstbestendig met zonnepanelen, een energiezuinige warmtepomp en vloerverwarming op alle verdiepingen. Dankzij de royale tuin, eigen oprit en gunstige ligging is deze woning perfect voor gezinnen die comfort en duurzaamheid willen combineren.




Niet alleen nieuwbouw
Van Weenen Bouwbedrijf staat niet alleen voor hoogwaardige nieuwbouw, zoals bij de door ons gebouwde woning De Dubbelhof, maar is ook dé vertrouwde partner voor diverse andere bouwprojecten. Ontdek onze vakkennis in renovatie – van het herstellen en moderniseren van casco’s tot het verfijnen van uw interieur voor optimaal comfort en uitstraling. Speciale aandacht schenken we aan monumentale renovatie, waarbij de historische waarde van uw pand zorgvuldig wordt behouden. Wilt u uw woning verleiden met een stralende uitstraling? Onze expertise in gevelrenovatie zorgt voor een duurzame verfraaiing én bescherming. En voor wie droomt van maatwerk: onze afdeling interieurbouw realiseert overtuigende, persoonlijke oplossingen die naadloos aansluiten op uw wensen.
Meer informatie?
Samen de eerste paal slaan van je nieuwbouwwoning?
Wilt u meer weten over deze woning of andere mogelijkheden? Neem vandaag nog contact met ons op voor een vrijblijvend gesprek. Onze experts staan voor u klaar om uw vragen te beantwoorden en u te begeleiden bij de volgende stap. Samen maken we uw woonwensen werkelijkheid!

