
Nieuwbouwwoning in Hoek van Holland
In Hoek van Holland hebben wij iets bijzonders gebouwd. Deze nieuwbouwwoning is van begin tot eind ontworpen en gebouwd op basis van de persoonlijke dromen en wensen van onze opdrachtgever.
Elke steen, elke ruimte en elk detail vertelt het verhaal van een thuis dat écht past bij zijn bewoners. Van het eerste gesprek tot de laatste afwerking hebben wij samen gezocht naar slimme, duurzame oplossingen en een stijl die nergens anders te vinden is.
Het resultaat? Een thuis waar comfort, energiezuinigheid en maatwerk samenkomen – helemaal in lijn met de wensen onze opdrachtgevers én met oog voor de toekomst.
Nieuwbouw dat staat als een huis
Contact opnemen
Een overzicht van deze nieuwbouwwoning
Hieronder vindt je heldere informatie over de indeling, afmetingen en constructiedetails. Wil je meer weten of de woning zelf ervaren? Neem gerust contact met ons op voor een afspraak of aanvullende vragen. We helpen je graag verder!
Wij hebben deze gegevens met zorg samengesteld maar ondanks dat kunnen hier geen rechten aan ontleent worden.
En zo zit het in elkaar
Technische omschrijving
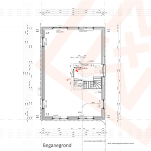
Begane grond
Entree / hal: ca. 2,40 m × 2,00 m = 4,8 m²
Compacte entree met trapopgang naar de eerste verdieping en directe toegang tot het toilet en de woonkamer.Woonkamer / leefruimte: ca. 7,20 m × 5,80 m = 41,8 m²
Ruime en lichte woonkamer met grote raampartijen aan de tuinzijde en een open verbinding met de keuken.Keuken: ca. 3,50 m × 3,00 m = 10,5 m²
Open keuken aan de voorzijde, ideaal voor een kookeiland of ruime eettafel.Garage (aangebouwd): ca. 3,00 m × 6,00 m = 18 m²
Aangebouwde garage met ruimte voor auto, fietsen en extra opslag.
Eerste verdieping
Slaapkamer 1 (master): ca. 5,00 m × 3,50 m = 17,5 m²
Ruime slaapkamer met veel lichtinval en uitzicht over de tuin.Slaapkamer 2: ca. 3,50 m × 3,20 m = 11,2 m²
Perfect als kinderkamer of thuiskantoor.Slaapkamer 3: ca. 3,00 m × 2,80 m = 8,4 m²
Compacte kamer, ideaal voor een logeer- of hobbykamer.Badkamer: ca. 3,00 m × 2,50 m = 7,5 m²
Moderne badkamer met ruimte voor inloopdouche, ligbad en dubbele wastafel.Overloop / hal: ca. 2,50 m × 2,00 m = 5 m²
Praktische centrale overloop met toegang tot de zolder.
Zolder
Zolderruimte: ca. 6,50 m × 5,00 m = 32,5 m²
Grote open ruimte met dakramen, ideaal voor een extra slaapkamer, kantoor of hobbyruimte. Veel opbergmogelijkheden onder de schuine kanten.
Constructiedetails
Buitenmuren: Traditioneel metselwerk in lichte gevelsteen met donkere accenten rondom de kozijnen, volledig geïsoleerd volgens de nieuwste BENG-normen.
Dak: Zadeldak met keramische dakpannen en geïntegreerde zonnepanelen aan de zonzijde voor optimale energieopwekking.
Vloeren: Geïsoleerde betonvloeren op zandbed op de begane grond en verdiepingsvloeren in kanaalplaatbeton.
Kozijnen: Onderhoudsarme kunststof kozijnen met HR++ glas voor optimale isolatie en een moderne uitstraling.
Installaties: Duurzaam uitgevoerd met warmtepomp, vloerverwarming op alle verdiepingen en balansventilatie voor een comfortabel en energiezuinig binnenklimaat.
Deze woning in Hoek van Holland combineert modern wonen met een tijdloze uitstraling. Dankzij de lichte gevelsteen en donkere kozijnaccenten oogt de woning fris en stijlvol. Binnen biedt de woning veel ruimte en flexibiliteit: een royale woonkamer, open keuken, drie ruime slaapkamers en een multifunctionele zolder.
De woning is duurzaam en toekomstbestendig, uitgerust met zonnepanelen, vloerverwarming en een energiezuinige warmtepomp. Met een zonnige tuin, garage en eigen oprit is dit een ideale gezinswoning, perfect gelegen in een gewilde wijk dicht bij strand, winkels en openbaar vervoer.





Niet alleen nieuwbouw
Van Weenen Bouwbedrijf staat niet alleen voor hoogwaardige nieuwbouw, zoals bij de door ons gebouwde woning De Duinroos, maar is ook dé vertrouwde partner voor diverse andere bouwprojecten. Ontdek onze vakkennis in renovatie – van het herstellen en moderniseren van casco’s tot het verfijnen van uw interieur voor optimaal comfort en uitstraling. Speciale aandacht schenken we aan monumentale renovatie, waarbij de historische waarde van uw pand zorgvuldig wordt behouden. Wilt u uw woning verleiden met een stralende uitstraling? Onze expertise in gevelrenovatie zorgt voor een duurzame verfraaiing én bescherming. En voor wie droomt van maatwerk: onze afdeling interieurbouw realiseert overtuigende, persoonlijke oplossingen die naadloos aansluiten op uw wensen.
Meer informatie?
Samen de eerste paal slaan van je nieuwbouwwoning?
Wilt u meer weten over deze woning of andere mogelijkheden? Neem vandaag nog contact met ons op voor een vrijblijvend gesprek. Onze experts staan voor u klaar om uw vragen te beantwoorden en u te begeleiden bij de volgende stap. Samen maken we uw woonwensen werkelijkheid!

