
Nieuwbouwwoning in Reeuwijk
In Reeuwijk hebben wij iets bijzonders gebouwd. Deze nieuwbouwwoning is van begin tot eind ontworpen en gebouwd op basis van de persoonlijke dromen en wensen van onze opdrachtgever.
Elke steen, elke ruimte en elk detail vertelt het verhaal van een thuis dat écht past bij zijn bewoners. Van het eerste gesprek tot de laatste afwerking hebben wij samen gezocht naar slimme, duurzame oplossingen en een stijl die nergens anders te vinden is.
Het resultaat? Een thuis waar comfort, energiezuinigheid en maatwerk samenkomen – helemaal in lijn met de wensen onze opdrachtgevers én met oog voor de toekomst.
Nieuwbouw dat staat als een huis
Contact opnemen

Een overzicht van deze nieuwbouwwoning
Hieronder vindt je heldere informatie over de indeling, afmetingen en constructiedetails. Wil je meer weten of de woning zelf ervaren? Neem gerust contact met ons op voor een afspraak of aanvullende vragen. We helpen je graag verder!
Wij hebben deze gegevens met zorg samengesteld maar ondanks dat kunnen hier geen rechten aan ontleent worden.
En zo zit het in elkaar
Technische omschrijving
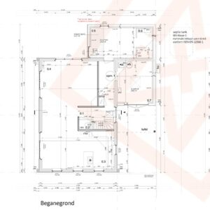
Begane grond
Entree / hal: ca. 6 m² – royale entree met trapopgang, garderoberuimte en toegang tot toilet en woonkamer.
Toilet: ca. 1,5 m² – modern afgewerkt met hoogwaardig sanitair.
Woonkamer / leefruimte: ca. 45 m² – ruime en lichte leefruimte met grote raampartijen en dubbele openslaande deuren naar het terras en de tuin.
Keuken: ca. 15 m² – open keuken, ideaal voor een kookeiland of royale eettafel.
Bijkeuken / technische ruimte: ca. 6 m² – geschikt voor witgoed en extra opslagruimte.
Garage / berging: ca. 14 m² – inpandig bereikbaar en geschikt als garage, fietsenberging of werkruimte.
Eerste verdieping
Overloop: ca. 7 m² – centraal gelegen, toegang tot alle kamers en trap naar de zolder.
Slaapkamer 1 (master): ca. 17 m² – aan de achterzijde, met veel lichtinval en ruimte voor een kastenwand.
Slaapkamer 2: ca. 13 m² – perfect als kinderkamer of werkkamer.
Slaapkamer 3: ca. 12 m² – geschikt als logeerkamer of kantoor.
Badkamer: ca. 8 m² – luxe en ruim, met douche, ligbad, dubbele wastafel en toilet.
Zolder
Open ruimte: ca. 20 m² – multifunctionele ruimte, bijvoorbeeld als extra slaapkamer, hobbyruimte of thuiswerkplek.
Technische voorzieningen: Mogelijkheid voor extra installaties zoals wasruimte of airconditioning.
Dakramen: Voor een overvloed aan daglicht.
Constructiedetails
Dak: Zadeldak met een robuuste noklijn en een hellingshoek van ca. 45 graden. Uitgevoerd met donkere keramische dakpannen en geïntegreerde zonnepanelen.
Gevels: Licht genuanceerde baksteen in combinatie met donkere kozijnen voor een eigentijdse en frisse uitstraling.
Vloeren: Betonvloeren op alle verdiepingen, met vloerverwarming op de begane grond.
Kozijnen: Onderhoudsarme kunststof kozijnen met HR++ beglazing voor optimale isolatie.
Isolatie: Dak, gevels en vloeren zijn uitstekend geïsoleerd conform de laatste BENG-normen.
Installaties: Warmtepomp, balansventilatie en zonnepanelen maken deze woning energiezuinig en toekomstbestendig.
Deze moderne gezinswoning in Reeuwijk combineert tijdloze elegantie met hedendaags comfort. De lichte gevelsteen, donkere kozijnen en het karaktervolle zadeldak met geïntegreerde zonnepanelen geven de woning een luxe uitstraling. Binnen biedt de woning een royale leefruimte met een open keuken en veel lichtinval door de grote raampartijen. Op de verdieping bevinden zich drie ruime slaapkamers en een comfortabele badkamer, terwijl de zolder alle ruimte biedt voor een kantoor, extra slaapkamer of hobbyruimte.
Met hoogwaardige isolatie, duurzame installaties en een prachtige ligging in een rustige, groene omgeving, is deze woning de perfecte combinatie van stijl, comfort en toekomstbestendigheid.





Niet alleen nieuwbouw
Van Weenen Bouwbedrijf staat niet alleen voor hoogwaardige nieuwbouw, zoals bij de door ons gebouwde woning De Hoeve, maar is ook dé vertrouwde partner voor diverse andere bouwprojecten. Ontdek onze vakkennis in renovatie – van het herstellen en moderniseren van casco’s tot het verfijnen van uw interieur voor optimaal comfort en uitstraling. Speciale aandacht schenken we aan monumentale renovatie, waarbij de historische waarde van uw pand zorgvuldig wordt behouden. Wilt u uw woning verleiden met een stralende uitstraling? Onze expertise in gevelrenovatie zorgt voor een duurzame verfraaiing én bescherming. En voor wie droomt van maatwerk: onze afdeling interieurbouw realiseert overtuigende, persoonlijke oplossingen die naadloos aansluiten op uw wensen.
Meer informatie?
Samen de eerste paal slaan van je nieuwbouwwoning?
Wilt u meer weten over deze woning of andere mogelijkheden? Neem vandaag nog contact met ons op voor een vrijblijvend gesprek. Onze experts staan voor u klaar om uw vragen te beantwoorden en u te begeleiden bij de volgende stap. Samen maken we uw woonwensen werkelijkheid!

