
Nieuwbouwwoning in Heenvliet
In Heenvliet hebben wij iets bijzonders gebouwd. Deze nieuwbouwwoning is van begin tot eind ontworpen en gebouwd op basis van de persoonlijke dromen en wensen van onze opdrachtgever.
Elke steen, elke ruimte en elk detail vertelt het verhaal van een thuis dat écht past bij zijn bewoners. Van het eerste gesprek tot de laatste afwerking hebben wij samen gezocht naar slimme, duurzame oplossingen en een stijl die nergens anders te vinden is.
Het resultaat? Een thuis waar comfort, energiezuinigheid en maatwerk samenkomen – helemaal in lijn met de wensen onze opdrachtgevers én met oog voor de toekomst.
Nieuwbouw dat staat als een huis
Contact opnemen

Een overzicht van deze nieuwbouwwoning
Hieronder vindt je heldere informatie over de indeling, afmetingen en constructiedetails. Wil je meer weten of de woning zelf ervaren? Neem gerust contact met ons op voor een afspraak of aanvullende vragen. We helpen je graag verder!
Wij hebben deze gegevens met zorg samengesteld maar ondanks dat kunnen hier geen rechten aan ontleent worden.
En zo zit het in elkaar
Technische omschrijving
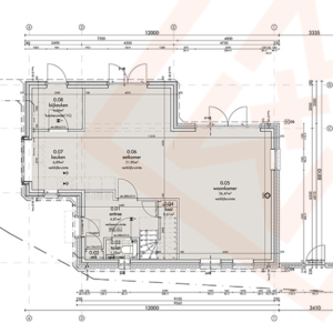
Begane grond
Entree / hal: ca. 2,50 m × 2,20 m = 5,5 m²
Ruime entree met trapopgang naar de eerste verdieping, toegang tot de meterkast en het toilet, en directe verbinding naar de woonkamer.
Woonkamer / leefruimte: ca. 7,00 m × 5,80 m = 40,6 m²
Royale, lichte woonkamer met grote raampartijen en openslaande deuren naar de tuin. Perfecte ruimte voor een zithoek en een open verbinding naar de keuken en eethoek.
Keuken: ca. 3,50 m × 3,20 m = 11,2 m²
Open keuken met uitzicht over de tuin. Ideaal voor een kookeiland en ruime eettafel.
Bijkeuken: ca. 2,50 m × 2,20 m = 5,5 m²
Handige bijkeuken met wasmachineaansluiting, extra bergruimte en toegang tot de tuin.
Toilet: ca. 1,20 m × 1,00 m = 1,2 m²
Compact toilet, centraal gesitueerd bij de entree.
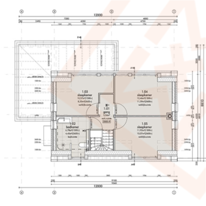
Eerste verdieping
Slaapkamer 1 (master): ca. 5,00 m × 3,80 m = 19 m²
Ruime hoofdslaapkamer met veel lichtinval en zicht op de tuin.
Slaapkamer 2: ca. 3,50 m × 3,00 m = 10,5 m²
Ideale ruimte voor een kinderkamer of thuiskantoor.
Slaapkamer 3: ca. 3,20 m × 2,80 m = 9 m²
Compacte kamer, geschikt als logeer- of hobbyruimte.
Badkamer: ca. 3,00 m × 2,50 m = 7,5 m²
Moderne badkamer met ruimte voor inloopdouche, ligbad, dubbele wastafel en toilet.
Overloop / hal: ca. 2,50 m × 2,00 m = 5 m²
Centrale overloop met toegang tot alle kamers en de trap naar de zolder.
Zolder
Zolderruimte: ca. 7,00 m × 5,00 m = 35 m²
Open, multifunctionele ruimte met dakramen. Geschikt als extra slaapkamer, werkruimte of bergruimte. Mogelijkheid om eenvoudig een vierde slaapkamer te realiseren.
Constructiedetails
Buitenmuren: Traditioneel metselwerk met lichte gevelsteen en donkere accenten rondom de kozijnen, volledig geïsoleerd volgens de nieuwste BENG-normen.
Dak: Zadeldak met keramische dakpannen, voorzien van zonnepanelen op de zuidzijde.
Vloeren: Geïsoleerde betonvloer op zandbed voor de begane grond, kanaalplaatvloeren voor de verdiepingen.
Kozijnen: Onderhoudsarme houten kozijnen met HR++ glas, uitgevoerd in een klassieke stijl passend bij de notariswoning.
Installaties: Duurzame warmtepomp, vloerverwarming op alle verdiepingen en balansventilatie voor een optimaal binnenklimaat.
Deze prachtige notariswoning in Heenvliet combineert klassieke charme met modern wooncomfort. Met een royale woonkamer, een open keuken, drie ruime slaapkamers en een multifunctionele zolder biedt deze woning ruimte en flexibiliteit voor het hele gezin.
De woning is duurzaam gebouwd, voorzien van zonnepanelen, een warmtepomp en uitstekende isolatie, waardoor lage energielasten gegarandeerd zijn. Gelegen in een rustige en historische straat, op loopafstand van voorzieningen en de groene omgeving, is dit de ideale woning voor wie stijlvol en energiezuinig wil wonen.




Niet alleen nieuwbouw
Van Weenen Bouwbedrijf staat niet alleen voor hoogwaardige nieuwbouw, zoals bij de door ons gebouwde woning De Linde, maar is ook dé vertrouwde partner voor diverse andere bouwprojecten. Ontdek onze vakkennis in renovatie – van het herstellen en moderniseren van casco’s tot het verfijnen van uw interieur voor optimaal comfort en uitstraling. Speciale aandacht schenken we aan monumentale renovatie, waarbij de historische waarde van uw pand zorgvuldig wordt behouden. Wilt u uw woning verleiden met een stralende uitstraling? Onze expertise in gevelrenovatie zorgt voor een duurzame verfraaiing én bescherming. En voor wie droomt van maatwerk: onze afdeling interieurbouw realiseert overtuigende, persoonlijke oplossingen die naadloos aansluiten op uw wensen.
Meer informatie?
Samen de eerste paal slaan van je nieuwbouwwoning?
Wilt u meer weten over deze woning of andere mogelijkheden? Neem vandaag nog contact met ons op voor een vrijblijvend gesprek. Onze experts staan voor u klaar om uw vragen te beantwoorden en u te begeleiden bij de volgende stap. Samen maken we uw woonwensen werkelijkheid!

