
Nieuwbouwwoning in Nieuw Vossemeer
In Nieuw Vossemeer hebben wij iets bijzonders gebouwd. Deze nieuwbouwwoning is van begin tot eind ontworpen en gebouwd op basis van de persoonlijke dromen en wensen van onze opdrachtgever.
Elke steen, elke ruimte en elk detail vertelt het verhaal van een thuis dat écht past bij zijn bewoners. Van het eerste gesprek tot de laatste afwerking hebben wij samen gezocht naar slimme, duurzame oplossingen en een stijl die nergens anders te vinden is.
Het resultaat? Een thuis waar comfort, energiezuinigheid en maatwerk samenkomen – helemaal in lijn met de wensen onze opdrachtgevers én met oog voor de toekomst.
Nieuwbouw dat staat als een huis
Contact opnemen
Een overzicht van deze nieuwbouwwoning
Hieronder vindt je heldere informatie over de indeling, afmetingen en constructiedetails. Wil je meer weten of de woning zelf ervaren? Neem gerust contact met ons op voor een afspraak of aanvullende vragen. We helpen je graag verder!
Wij hebben deze gegevens met zorg samengesteld maar ondanks dat kunnen hier geen rechten aan ontleent worden.
En zo zit het in elkaar
Technische omschrijving
Begane grond
Entree / hal: ca. 2,10 m × 2,40 m = 5 m²
Ruime hal met toegang tot de trapopgang, meterkast en toilet.Woonkamer / leefruimte: ca. 7,20 m × 5,00 m = 36 m²
Lichte en ruime woonkamer met grote raampartijen en directe toegang tot de tuin via dubbele openslaande deuren.Keuken: ca. 3,50 m × 3,20 m = 11,2 m²
Moderne open keuken aan de voorzijde met ruimte voor een kookeiland en veel kastruimte.Toilet: ca. 1,20 m × 1,00 m = 1,2 m²
Compact en centraal gelegen bij de entree.Garage (aangebouwd): ca. 6,00 m × 3,00 m = 18 m²
Inpandige garage, geschikt voor auto, fietsen of extra opslag.
Eerste verdieping
Slaapkamer 1 (achterzijde): ca. 4,80 m × 3,30 m = 15,8 m²
Ruime masterbedroom met veel lichtinval.Slaapkamer 2 (voorzijde): ca. 3,80 m × 3,00 m = 11,4 m²
Ideaal als kinder- of logeerkamer.Slaapkamer 3: ca. 3,50 m × 3,00 m = 10,5 m²
Perfect te gebruiken als thuiswerkplek of hobbykamer.Badkamer: ca. 2,60 m × 2,30 m = 6 m²
Voorzien van een inloopdouche, dubbele wastafel en ligbad.Overloop: ca. 2,50 m × 2,00 m = 5 m²
Centrale toegang tot alle ruimtes.Berging / wasruimte: ca. 2,00 m × 1,50 m = 3 m²
Praktische ruimte voor wasmachine, droger en technische installaties.
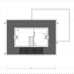
Zolder
Open zolderruimte: ca. 6,00 m × 3,50 m = 21 m²
Multifunctionele ruimte, ideaal als extra slaapkamer, kantoor of speelzolder. Dakramen zorgen voor extra licht en ventilatie.
Constructiedetails
Buitenmuren: Traditioneel metselwerk met hoogwaardige isolatie, in combinatie met een robuuste voeg voor een tijdloze uitstraling.
Dak: Schilddak met keramische dakpannen en geïntegreerde zonnepanelen, zichtbaar op gevelaanzichten en doorsnede.
Vloeren: Geïsoleerde betonvloer op de begane grond, verdiepingsvloeren in beton voor optimale geluidsdemping en stevigheid.
Kozijnen: Onderhoudsarme kunststof kozijnen met HR++ glas, wat zorgt voor uitstekende isolatie.
Trap: Gesloten houten trap naar de eerste verdieping en vaste trap naar de zolder.
Energiezuinig: Voorzien van warmtepomp, vloerverwarming en hoogwaardige isolatie, waardoor de woning volledig voldoet aan de laatste BENG-eisen.
Deze woning in Oud-Vossemeer combineert een tijdloze architectuur met moderne gemakken. De grote open leefruimte op de begane grond biedt volop ruimte voor het gezinsleven, terwijl de eerste verdieping drie ruime slaapkamers en een luxe badkamer biedt. De zolder maakt het huis extra flexibel, ideaal voor een extra slaapkamer, een kantoor of een hobbyruimte. Met duurzame voorzieningen zoals zonnepanelen, een warmtepomp en uitstekende isolatie is de woning niet alleen comfortabel, maar ook klaar voor de toekomst.





Niet alleen nieuwbouw
Van Weenen Bouwbedrijf staat niet alleen voor hoogwaardige nieuwbouw, zoals bij de door ons gebouwde woning De Polderhoeve, maar is ook dé vertrouwde partner voor diverse andere bouwprojecten. Ontdek onze vakkennis in renovatie – van het herstellen en moderniseren van casco’s tot het verfijnen van uw interieur voor optimaal comfort en uitstraling. Speciale aandacht schenken we aan monumentale renovatie, waarbij de historische waarde van uw pand zorgvuldig wordt behouden. Wilt u uw woning verleiden met een stralende uitstraling? Onze expertise in gevelrenovatie zorgt voor een duurzame verfraaiing én bescherming. En voor wie droomt van maatwerk: onze afdeling interieurbouw realiseert overtuigende, persoonlijke oplossingen die naadloos aansluiten op uw wensen.
Meer informatie?
Samen de eerste paal slaan van je nieuwbouwwoning?
Wilt u meer weten over deze woning of andere mogelijkheden? Neem vandaag nog contact met ons op voor een vrijblijvend gesprek. Onze experts staan voor u klaar om uw vragen te beantwoorden en u te begeleiden bij de volgende stap. Samen maken we uw woonwensen werkelijkheid!

