
Nieuwbouwwoning in Brouwershaven
In Brouwershaven hebben wij iets bijzonders gebouwd. Deze nieuwbouwwoning is van begin tot eind ontworpen en gebouwd op basis van de persoonlijke dromen en wensen van onze opdrachtgever.
Elke steen, elke ruimte en elk detail vertelt het verhaal van een thuis dat écht past bij zijn bewoners. Van het eerste gesprek tot de laatste afwerking hebben wij samen gezocht naar slimme, duurzame oplossingen en een stijl die nergens anders te vinden is.
Het resultaat? Een thuis waar comfort, energiezuinigheid en maatwerk samenkomen – helemaal in lijn met de wensen onze opdrachtgevers én met oog voor de toekomst.
Nieuwbouw dat staat als een huis
Contact opnemen

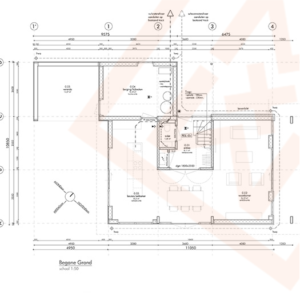
Een overzicht van deze nieuwbouwwoning
Hieronder vindt je heldere informatie over de indeling, afmetingen en constructiedetails. Wil je meer weten of de woning zelf ervaren? Neem gerust contact met ons op voor een afspraak of aanvullende vragen. We helpen je graag verder!
Wij hebben deze gegevens met zorg samengesteld maar ondanks dat kunnen hier geen rechten aan ontleent worden.
En zo zit het in elkaar
Technische omschrijving
Begane grond
Entree / hal: ca. 3,00 m × 2,20 m = 6,6 m²
Praktische entree met garderoberuimte en toegang tot de trapopgang en het toilet.
Woonkamer / leefruimte: ca. 7,50 m × 5,80 m = 43,5 m²
Royale woonkamer met grote raampartijen en openslaande deuren naar de tuin. De open indeling en het hoge plafond tot in de nok zorgen voor veel licht en een ruimtelijk gevoel.
Keuken: ca. 4,50 m × 3,00 m = 13,5 m²
Moderne open keuken met uitzicht over de tuin en ruimte voor een kookeiland en ruime eettafel.
Bijkeuken: ca. 3,00 m × 2,50 m = 7,5 m²
Handige bijkeuken met aansluitingen voor witgoed en extra opslagruimte, direct bereikbaar vanuit de keuken.
Werkkamer / slaapkamer: ca. 3,80 m × 3,20 m = 12,2 m²
Flexibele ruimte die ideaal te gebruiken is als thuiskantoor, speelkamer of gelijkvloerse slaapkamer.
Eerste verdieping
Slaapkamer 1 (master): ca. 5,00 m × 3,80 m = 19 m²
Grote ouderslaapkamer met prachtig uitzicht door de brede ramen en extra ruimte voor een inloopkast.
Slaapkamer 2: ca. 3,50 m × 3,20 m = 11,2 m²
Ruime slaapkamer, ideaal voor kinderen of als logeerkamer.
Slaapkamer 3: ca. 3,20 m × 3,00 m = 9,6 m²
Compacte, praktische kamer die geschikt is als studeerkamer of hobbyruimte.
Badkamer: ca. 3,00 m × 2,80 m = 8,4 m²
Luxe badkamer met inloopdouche, ligbad, dubbele wastafel en veel licht door de dakkapel.
Overloop / hal: ca. 2,50 m × 2,00 m = 5 m²
Centrale overloop die de slaapkamers en badkamer met elkaar verbindt.
Constructiedetails
Buitenmuren: Combinatie van zwart gebeitst hout en naturel houten accenten, volledig geïsoleerd volgens de laatste BENG-eisen.
Dak: Zadeldak met keramische dakpannen in antracietkleur.
Vloeren: Geïsoleerde betonvloer op de begane grond, verdiepingsvloer in beton met hoge isolatiewaarde.
Kozijnen: Aluminium kozijnen met HR+++ glas, uitgevoerd in stijlvol zwart.
Installaties: Voorzien van een warmtepomp, vloerverwarming op beide verdiepingen en balansventilatie voor een comfortabel en energiezuinig klimaat.
Deze stoere schuurwoning in Brouwershaven combineert landelijke charme met een moderne en duurzame afwerking. De combinatie van zwart gebeitst hout, naturel houten delen en de strakke vormgeving geeft de woning een eigentijds karakter.
Binnen biedt de woning veel licht en ruimte door de hoge plafonds en grote glaspartijen. Met drie ruime slaapkamers, een multifunctionele ruimte op de begane grond en een luxe badkamer is dit een perfect gezinshuis.
Dankzij de duurzame installaties, zoals een warmtepomp en vloerverwarming, is de woning volledig voorbereid op de toekomst. De woning ligt in een rustige en groene omgeving, met het strand en de gezellige dorpskern van Brouwershaven op fietsafstand.




Niet alleen nieuwbouw
Van Weenen Bouwbedrijf staat niet alleen voor hoogwaardige nieuwbouw, zoals bij de door ons gebouwde woning De Zwarte Schuur, maar is ook dé vertrouwde partner voor diverse andere bouwprojecten. Ontdek onze vakkennis in renovatie – van het herstellen en moderniseren van casco’s tot het verfijnen van uw interieur voor optimaal comfort en uitstraling. Speciale aandacht schenken we aan monumentale renovatie, waarbij de historische waarde van uw pand zorgvuldig wordt behouden. Wilt u uw woning verleiden met een stralende uitstraling? Onze expertise in gevelrenovatie zorgt voor een duurzame verfraaiing én bescherming. En voor wie droomt van maatwerk: onze afdeling interieurbouw realiseert overtuigende, persoonlijke oplossingen die naadloos aansluiten op uw wensen.
Meer informatie?
Samen de eerste paal slaan van je nieuwbouwwoning?
Wilt u meer weten over deze woning of andere mogelijkheden? Neem vandaag nog contact met ons op voor een vrijblijvend gesprek. Onze experts staan voor u klaar om uw vragen te beantwoorden en u te begeleiden bij de volgende stap. Samen maken we uw woonwensen werkelijkheid!

