
Nieuwbouwwoning in Rhoon
In Rhoon hebben wij iets bijzonders gebouwd. Deze nieuwbouwwoning is van begin tot eind ontworpen en gebouwd op basis van de persoonlijke dromen en wensen van onze opdrachtgever.
Elke steen, elke ruimte en elk detail vertelt het verhaal van een thuis dat écht past bij zijn bewoners. Van het eerste gesprek tot de laatste afwerking hebben wij samen gezocht naar slimme, duurzame oplossingen en een stijl die nergens anders te vinden is.
Het resultaat? Een thuis waar comfort, energiezuinigheid en maatwerk samenkomen – helemaal in lijn met de wensen onze opdrachtgevers én met oog voor de toekomst.
Nieuwbouw dat staat als een huis
Contact opnemen

Een overzicht van deze nieuwbouwwoning
Hieronder vindt je heldere informatie over de indeling, afmetingen en constructiedetails. Wil je meer weten of de woning zelf ervaren? Neem gerust contact met ons op voor een afspraak of aanvullende vragen. We helpen je graag verder!
Wij hebben deze gegevens met zorg samengesteld maar ondanks dat kunnen hier geen rechten aan ontleent worden.
En zo zit het in elkaar
Technische omschrijving
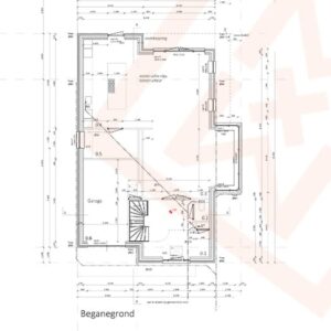
Begane grond
Entree / hal: ca. 8 m² – met trapopgang, garderobe en toegang tot toilet en woonkamer.
Toilet: ca. 1,8 m² – separaat, modern afgewerkt.
Woonkamer / eetkamer: ca. 48 m² – royale, open leefruimte met veel licht door de grote raampartijen en dubbele openslaande deuren naar de tuin.
Keuken: ca. 16 m² – open keuken met ruimte voor kookeiland en eethoek, direct verbonden met de woonkamer.
Garage: ca. 18 m² – inpandige garage, bereikbaar vanuit de hal.
Eerste verdieping
Overloop: ca. 7 m² – centraal gelegen, toegang tot slaapkamers en badkamer.
Slaapkamer 1 (master): ca. 20 m² – ruime kamer met zicht op de tuin.
Slaapkamer 2: ca. 14 m² – perfect voor een kinderkamer of thuiskantoor.
Slaapkamer 3: ca. 13 m² – extra kamer voor logees of hobby.
Badkamer: ca. 9 m² – luxe badkamer met ruimte voor inloopdouche, ligbad, dubbele wastafel en toilet.
Zolder
Open zolderruimte: ca. 25 m² – multifunctioneel te gebruiken als extra slaapkamer, werkruimte of hobbykamer.
Technische ruimte: ruimte voor warmtepomp, ventilatiesysteem en extra bergruimte.
Constructiedetails
Buitenmuren: Traditioneel metselwerk in roodbruine baksteen, hoge isolatiewaarde en onderhoudsarm.
Dak: Schilddak met donkere keramische dakpannen; voorzien van dakramen en een dakkapel voor extra licht en ruimte op zolder.
Vloeren: Geïsoleerde betonvloer op begane grond, verdiepingsvloeren van beton voor geluid- en warmte-isolatie.
Kozijnen: Kunststof kozijnen met HR++ glas, onderhoudsvriendelijk en energiezuinig.
Trap: Dichte houten trap met strakke afwerking.
Installaties: Duurzame warmtepomp, vloerverwarming op alle verdiepingen en mechanische ventilatie.
Deze moderne gezinswoning in Rhoon biedt ruimte, luxe en duurzaamheid in één. Met een royale woonkamer en open keuken op de begane grond, drie ruime slaapkamers op de eerste verdieping en een multifunctionele zolder is deze woning ideaal voor gezinnen die comfort en energiezuinigheid waarderen. De klassieke uitstraling met roodbruine baksteen en het elegante schilddak geven de woning een tijdloos karakter.





Niet alleen nieuwbouw
Van Weenen Bouwbedrijf staat niet alleen voor hoogwaardige nieuwbouw, zoals bij de door ons gebouwde woning Eleganza, maar is ook dé vertrouwde partner voor diverse andere bouwprojecten. Ontdek onze vakkennis in renovatie – van het herstellen en moderniseren van casco’s tot het verfijnen van uw interieur voor optimaal comfort en uitstraling. Speciale aandacht schenken we aan monumentale renovatie, waarbij de historische waarde van uw pand zorgvuldig wordt behouden. Wilt u uw woning verleiden met een stralende uitstraling? Onze expertise in gevelrenovatie zorgt voor een duurzame verfraaiing én bescherming. En voor wie droomt van maatwerk: onze afdeling interieurbouw realiseert overtuigende, persoonlijke oplossingen die naadloos aansluiten op uw wensen.
Meer informatie?
Samen de eerste paal slaan van je nieuwbouwwoning?
Wilt u meer weten over deze woning of andere mogelijkheden? Neem vandaag nog contact met ons op voor een vrijblijvend gesprek. Onze experts staan voor u klaar om uw vragen te beantwoorden en u te begeleiden bij de volgende stap. Samen maken we uw woonwensen werkelijkheid!

